Eladó Ikerház Budapest III. kerület - Szakóca utca

118 m2Alapterület 5 Szoba
222 500 000 Ft Ár
395024Azonosító
További adatok

775 m2 Telek

Kertre néző Kilátás

Új Állapot

Tégla Szerkezet

35 m2 Erkély/terasz

Hőszivattyú Fűtés

Dupla komfort Komfort

Saját beálló Parkolás

Közepes Tömegközlekedés

Amerikai konyhás

Van Kertkapcsolat

2027 Építés éve

Hitelkalkuláció – a részletekért kattintson valamelyik bank logójára!

Aranyhegy – exkluzív ikerház, önálló villa élménnyel

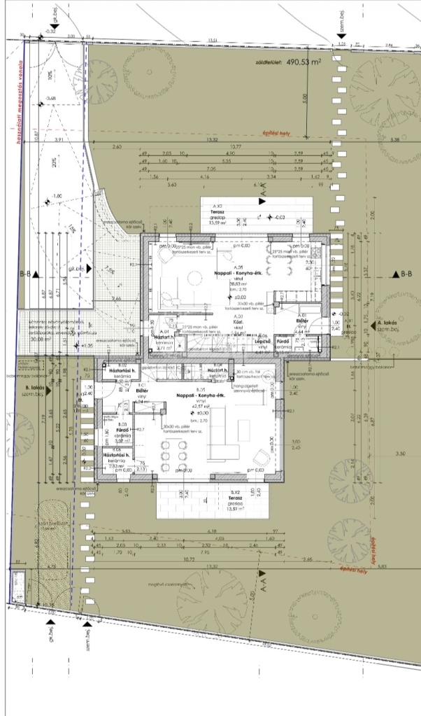
Aranyhegy egyik kedvelt, nyugodt részén kínálunk megvételre egy prémium minőségben épülő ikerház felet, amely kialakításának köszönhetően minden szempontból egy önálló családi ház kényelmét és intimitását biztosítja.

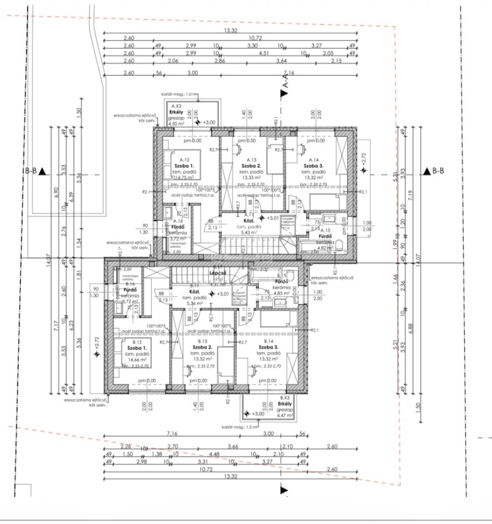
A 118 m²-es, amerikai konyhás nappali + 4 szobás otthonhoz egy közel 300 m²-es sík, szeparált kert tartozik, ahol a tágas, kertkapcsolatos terasz és az emeleti erkély ideális helyszínt nyújt a mindennapi feltöltődéshez.

Kiemelt műszaki tartalom és komfort:
-monolit vasbeton födém, korszerű falazat
-grafitos hőszigetelés, 3 rétegű nyílászárók
-energiatakarékos levegő–víz hőszivattyú
-mennyezeti hűtés–fűtés és padlófűtés
-helyiségenként szabályozható klíma
-motoros redőnyök, szúnyoghálóval
-3×25A elektromos kapacitás
-napelem és elektromos autótöltő előkészítés

A belső kialakítás korai vásárlás esetén szabadon alakítható, a burkolatok és szaniterek választhatók, így az otthon valóban a leendő tulajdonos igényeire szabható.

A modern építészeti megjelenés, az átgondolt térszervezés és a magas műszaki tartalom együttesen biztosítják az ingatlan hosszú távú értékállóságát és kiemelkedő lakóélményét.

Lokáció: csendes, zöld környezet, mégis kiváló elérhetőség – a mindennapi élethez szükséges szolgáltatások és tömegközlekedés néhány percen belül.

Az ikerház másik fele hasonló elrendezésű, kisebb telekrésszel, ugyanakkor egy plusz pinceszinttel bővített, ahol egy kényelmes kétállásos mélygarázs, gépészeti helyiség és egy 8,5 m²-es tároló kap helyet. A 143 m² hasznos alapterületű ingatlan irányára 255,9 millió Ft.

A lakások tervezett átadása 2027. február.

Jöjjön el, nézze meg és tegyen ajánlatot!
ID:395024
Lukács Péter

Lukács Péter

Hívjon bizalommal

+36-30-694-Mutasd!

További hirdetéseim

Ingatlaniroda
GDN Ingatlanhálózat - Belváros
+36 1 783 2515

Küldjön üzenetet

Visszahívást kérek

Hasonló ingatlanok