Kiadó Lakás (téglaépítésű) Budapest XIII. kerület - Bulcsú utca

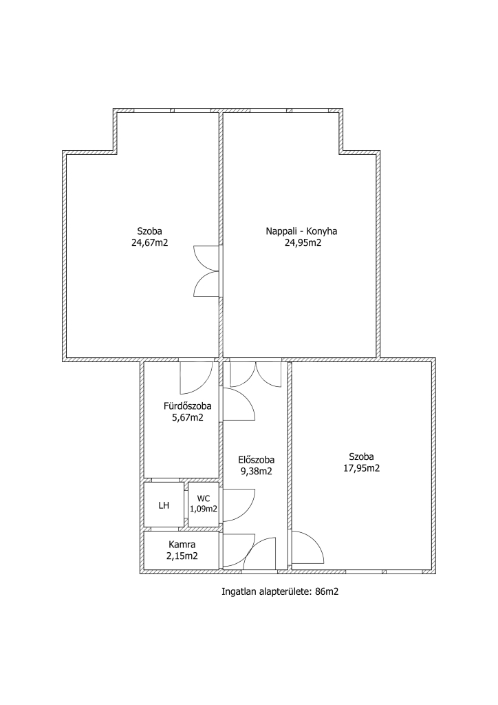
86 m2Alapterület 3 Szoba
390 000 Ft /Hó Ár
393493Azonosító
További adatok

Utcai Kilátás

Jó állapotú Állapot

Tégla Szerkezet

Gáz (konvektor) Fűtés

Komfort Komfort

Utcán, közterületen Parkolás

Emelet 2

Van Lift

Háziállat Nem

Kiváló Tömegközlekedés

Amerikai konyhás

Nincs Kertkapcsolat

1930 Építés éve

Közös költség 33 000 Ft

Délnyugati Tájolás

Azonnal költözhető, 3 szobás lakás a Lehel téri piacnál – kiváló közlekedéssel, hosszú távra kiadó, egyetemistáknak és cégeknek is ideális


Budapest egyik frekventált részén, a Bulcsú utcában, közvetlenül a Lehel téri piac szomszédságában, kiadó egy jó állapotú, téglaépítésű társasház második emeletén található, 86 m²-es, világos lakás.
Az ingatlan három külön nyíló szobával rendelkezik, így ideális választás lehet családoknak, baráti társaságoknak vagy egyetemistáknak is.

A lakás elrendezése tágas és praktikus, a nagy ablakoknak köszönhetően napfényes és kellemes hangulatú.
A konyha teljesen felszerelt és gépesített, a fürdőszoba berendezése szintén rendelkezésre áll, így az ingatlan azonnal költözhető állapotban várja új bérlőit. A lakás bútorozott, ezért külön berendezésre nincs szükség.
Az ablakok utcai kilátással rendelkeznek, a környék pezsgő, városi hangulatú, miközben minden fontos szolgáltatás karnyújtásnyira található.

Kiváló lokáció és közlekedés
A lakás egyik legnagyobb előnye az elhelyezkedése: a Lehel téri piac közvetlen közelében található, ahol bevásárlási lehetőségek, üzletek, éttermek és szolgáltatások széles választéka elérhető.

A közlekedés kiemelkedően jó:
• M3 metró néhány perc sétára
• több villamos- és buszjárat a közelben
• gyors elérés a belváros és az egyetemek felé

Bérleti feltételek
Bérleti díj: 390.000 Ft / hó + rezsi
Kaució: 2 havi kaució

A lakás munkáltatói igazolással, határozatlan idejű munkaszerződéssel, valamint közjegyzői bérleti szerződéssel bérelhető.
A közjegyzői szerződés költsége a bérlőt terheli.


✨ Az ingatlan kiváló elhelyezkedése, tágas terei és azonnali költözhetősége miatt ritka lehetőség a környéken – érdemes mielőbb megtekinteni!
Lukács Péter

Lukács Péter

Hívjon bizalommal

+36-30-694-Mutasd!

További hirdetéseim

Ingatlaniroda
GDN Ingatlanhálózat - Belváros
+36 1 783 2515

Küldjön üzenetet

Visszahívást kérek

Hasonló ingatlanok