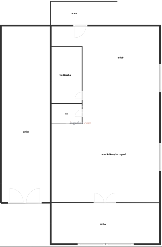
| 180 m2Alapterület | 4 + 1 Szoba |
| 147 000 000 Ft Ár | |
| 393167Azonosító | |
| További adatok | |
577 m2 Telek
Udvari Kilátás
Jó állapotú Állapot
Tégla Szerkezet
Gáz (cirkó) Fűtés
Összkomfort Komfort
Saját garázs Parkolás
Kiváló Tömegközlekedés
Nem Amerikai konyhás
Van Kertkapcsolat
1970 Építés éve
Délnyugati Tájolás