Eladó Lakás (téglaépítésű) Budapest XIII. kerület - Pannónia utca

87 m2Alapterület 2 + 1 Szoba
158 000 000 Ft Ár
394628Azonosító
További adatok

Utcai Kilátás

Felújított Állapot

Tégla Szerkezet

Gáz (héra) Fűtés

Összkomfort Komfort

Utcán, közterületen Parkolás

Emelet 2

Van Lift

Kiváló Tömegközlekedés

Nem Amerikai konyhás

Nincs Kertkapcsolat

1912 Építés éve

Délnyugati Tájolás

Hitelkalkuláció – a részletekért kattintson valamelyik bank logójára!

Kivételes hangulatú, nagypolgári lakás Újlipótváros szívében – a Pannónia és Radnóti utca sarkán

Budapest egyik legkedveltebb városrészében, Újlipótvárosban kínálunk megvételre egy 87 m²-es, igényesen felújított, nagy belmagasságú lakást, egy kulturált, liftes, szecessziós épületben.

Az 1914-ben, Román Miklós és Román Ernő tervei alapján épült ház igazi építészeti különlegesség, melynek állapotát a lakóközösség folyamatosan karbantartja (a gázvezetékek nemrég felújításra kerültek).

A lakás a második emeleten található, azonban a magasföldszintnek köszönhetően inkább harmadik emeleti érzetet nyújt.
A nappali és a hálószoba ablakai a hangulatos Radnóti Miklós utcára, míg a konyha és a kisebb szoba a csendes belső udvarra néznek.

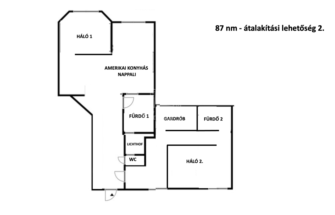
Jelenlegi elosztása:
• tágas előszoba gardróbsorral
• nagyméretű konyha, mellette spájz és külön szoba
• világos nappali
• külön nyíló hálószoba
• fürdőszoba és külön WC

A lakás kiváló adottságainak köszönhetően könnyedén átalakítható: igény esetén egy második hálószoba (akár saját fürdővel és gardróbbal) is kialakítható, amerikai konyhás nappali megoldással.

A komfortot minőségi cirkófűtés és légkondicionálás biztosítja. A lakáshoz tároló is tartozik.

Jelenleg bérlők lakják, akik április elején kiköltöznek, így az ingatlan rövid időn belül birtokba vehető.

Kiváló választás saját otthonnak vagy értékálló befektetésnek Budapest egyik legkeresettebb részén.
Lukács Péter

Lukács Péter

Hívjon bizalommal

+36-30-694-Mutasd!

További hirdetéseim

Ingatlaniroda
GDN Ingatlanhálózat - Belváros
+36 1 783 2515

Küldjön üzenetet

Visszahívást kérek

Hasonló ingatlanok