Eladó Lakás (panel) Budapest XVIII. kerület - Csontváry Kosztka Tivadar utca

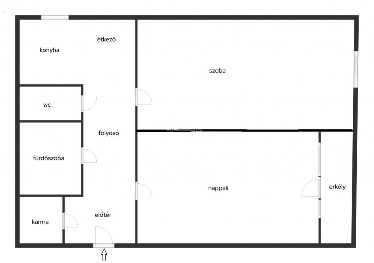
53 m2Alapterület 2 Szoba
60 900 000 Ft Ár
392294Azonosító
További adatok

Utcai Kilátás

Jó állapotú Állapot

Panel Szerkezet

3 m2 Erkély/terasz

Távfűtés Fűtés

Összkomfort Komfort

Utcán, közterületen Parkolás

Emelet 2

Van Lift

Tömegközlekedés

Nem Amerikai konyhás

Nincs Kertkapcsolat

1980 Építés éve

Hitelkalkuláció – a részletekért kattintson valamelyik bank logójára!

ELADÓ LAKÁS – XVIII. KERÜLET, HAVANNA LAKÓTELEP
Csontváry Kosztka Tivadar utca

Keleti fekvésű, világos, erkélyes otthon keresi új tulajdonosát!

53 m² | 2. emelet | 2 szoba + gardrób | erkély
Panelprogramos, szép, rendezett házban
Lift ✔️ akadálymentesített ✔️ csendes környezet ✔️

Felújítások – nem most kezdődtek, hanem rendesen megcsinálva:
✅ Parketták cseréje – 5 éve
✅ Villanyvezetékek – 4 éve
✅ Fürdőszoba – 1 éve teljes felújítás
✅ Bejárati + belső ajtók – cserélve
✅ Hűtő–fűtő klíma mindkét szobában

Finanszírozás: Mindössze 12.000.000 Ft önerő szükséges

Közös költség: 14670 Ft / hó
Távfűtés átalány: 9.500 Ft / hó
Villany & víz: egyedi mérés szerint

Környék: kiváló infrastruktúra
tömegközlekedés pár perc
iskola, óvoda, bolt, minden karnyújtásnyira
nyugodt, élhető lakótelepi környezet
Ne gondolkodj sokáig – az ilyen lakások gyorsan elmennek!
Lukács Péter

Lukács Péter

Hívjon bizalommal

+36-30-694-Mutasd!

További hirdetéseim

Ingatlaniroda
GDN Ingatlanhálózat - Belváros
+36 1 783 2515

Küldjön üzenetet

Visszahívást kérek

Hasonló ingatlanok