Eladó Lakás (panel) Budapest XX. kerület - Hársfa sétány

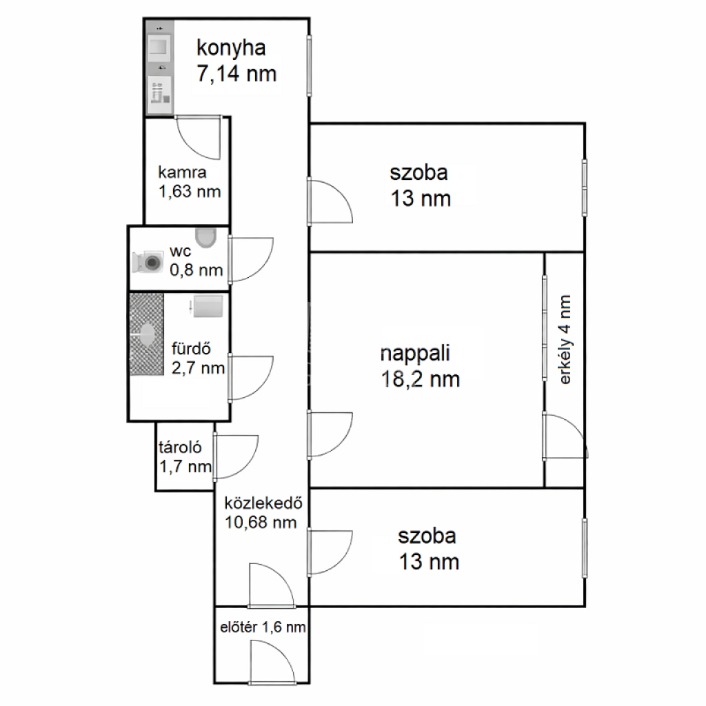
70 m2Alapterület 3 Szoba
69 500 000 Ft Ár
394375Azonosító
További adatok

Panoráma Kilátás

Jó állapotú Állapot

Panel Szerkezet

4 m2 Erkély/terasz

Házközponti egyedi mérővel Fűtés

Összkomfort Komfort

Utcán, közterületen Parkolás

Emelet 9

Van Lift

Kiváló Tömegközlekedés

Nem Amerikai konyhás

Nincs Kertkapcsolat

1982 Építés éve

Közös költség 20 000 Ft

Nyugati Tájolás

Hitelkalkuláció – a részletekért kattintson valamelyik bank logójára!

Panorámás, nappali + 2 hálós, 70 m2-es erkélyes lakás!

Pesterzsébet központjában, de a nagy forgalomtól kicsit távolabb, egy panelprogramos házban található ez a jó elosztású, kényelmes lakás.

2010-ben panelprogramon átesett épület szigetelt, karbantartott lift és belsőterekkel és napelemmel rendelkezik

2024-ben felújított nappali, hálószoba, fürdő és WC, 2024 májusban felszerelt hűtő-fűtő klíma (2 db belső egység)
A konyhát még ízlése szerint alakíthatja és akár a kamrával bővítheti.

Szobái és a vizes helyiségek is külön nyílnak.

A környéken minden megtalálható, ami egy család hétköznapjaiban szükséges.
Mindezek 3-5 perc alatt elérhetőek.

Közelben többféle szolgáltató és intézmény is megtalálható.

Közlekedés kíváló: a belváros és a metró is 15 perc alatt elérhető akár buszokkal, villamosokkal és HÉV-vel is.
Lukács Péter

Lukács Péter

Hívjon bizalommal

+36-30-694-Mutasd!

További hirdetéseim

Ingatlaniroda
GDN Ingatlanhálózat - Belváros
+36 1 783 2515

Küldjön üzenetet

Visszahívást kérek

Hasonló ingatlanok