Eladó Ikerház Budapest X. kerület - Maglódi út

105 m2Alapterület 4 Szoba
129 900 000 Ft Ár
394090Azonosító
További adatok

231 m2 Telek

Kertre néző Kilátás

Új Állapot

Tégla Szerkezet

2 m2 Erkély/terasz

Hőszivattyú Fűtés

Dupla komfort Komfort

Saját garázs Parkolás

Kiváló Tömegközlekedés

Amerikai konyhás

Van Kertkapcsolat

2026 Építés éve

Déli Tájolás

Hitelkalkuláció – a részletekért kattintson valamelyik bank logójára!

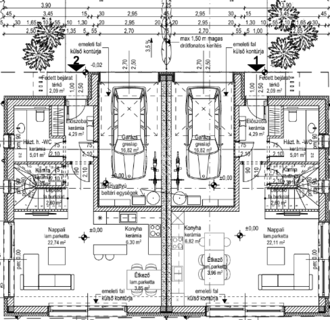
Modern, kétszintes ikerház eladó Budapest X. kerületében, Újhegy csendes, kertvárosi részén. Az új építésű ingatlan nettó 122 m² alapterületű, 16,8 m²-es garázzsal, saját kerttel és terasszal rendelkezik.

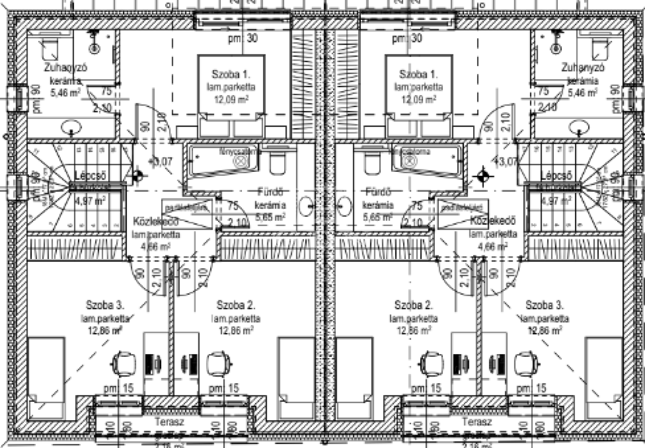
Az átgondolt elrendezésnek köszönhetően nappali–étkező–konyha egy légtérben, 3 külön nyíló hálószoba, 2 fürdőszoba, külön WC, háztartási helyiség és kamra biztosít kényelmes életteret családok számára. A világos nappali közvetlen kertkapcsolattal rendelkezik, nagy üvegfelületekkel.

A műszaki tartalom korszerű és energiatakarékos: hőszivattyús rendszer, padlófűtés, mennyezeti hűtés-fűtés az emeleten, 3 rétegű nyílászárók, 15 cm szigetelés.

A környék infrastruktúrája kiváló: a közelben óvodák, iskolák, bevásárlási lehetőségek, parkok, valamint gyors eljutás a belvárosba.

A belső kialakítás a vevő igényei szerint alakítható.
Teljes műszaki tervdokumentáció elérhető!

Várható átadás: 2026. III. negyedév.
Hitel és támogatások igényelhetők, díjmentes ügyintézéssel.
Amennyiben felkeltettem érdeklődését, keressen bizalommal!
ID: 394090
Lukács Péter

Lukács Péter

Hívjon bizalommal

+36-30-694-Mutasd!

További hirdetéseim

Ingatlaniroda
GDN Ingatlanhálózat - Belváros
+36 1 783 2515

Küldjön üzenetet

Visszahívást kérek

Hasonló ingatlanok