Eladó Lakás (téglaépítésű) Budapest XII. kerület - Csörsz utca

135 m2Alapterület 5 Szoba
275 000 000 Ft Ár
394303Azonosító
További adatok

Panoráma Kilátás

Újszerű Állapot

Tégla Szerkezet

22 m2 Erkély/terasz

Hőszivattyú Fűtés

Összkomfort Komfort

Utcán, közterületen Parkolás

Emelet 4

Legfelső emelet

Van Lift

Kiváló Tömegközlekedés

Amerikai konyhás

Nincs Kertkapcsolat

Tetőtéri ingatlan

2024 Építés éve

Közös költség 29 280 Ft

Nyugati Tájolás

Hitelkalkuláció – a részletekért kattintson valamelyik bank logójára!

Budai panoráma, tágas terek és egy ritka, belső kétszintes kialakítás a XII. kerület egyik legjobb részén.

-- Please scroll down for English --

Eladó a XII. kerület egyik legkedveltebb részén, a Csörsz utcában, a MOM Park közvetlen közelében egy belső kétszintes, teraszos, Várnegyedre panorámás, prémium minőségű otthon.

A környék egyszerre nyugodt és pezsgő: pár perc sétára található a MOM Park bevásárlóközpont, mozi, éttermek, valamint a Gesztenyés Park zöld területe. A közelben sportolási lehetőségek (uszoda, edzőtermek), valamint a Testnevelési Egyetem is elérhető. Közlekedés szempontjából is kiváló: villamossal gyorsan megközelíthető a Déli pályaudvar és a Széll Kálmán tér.

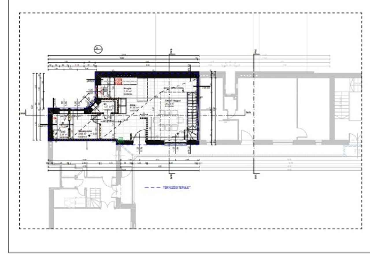
A lakás különlegessége a belső kétszintes kialakítás, amely tágas, jól elkülönülő élettereket biztosít.

Főbb jellemzők:
✅ Belső kétszintes elrendezés (összesen közel 125 m²)
✅ 22 m²-es panorámás terasz
✅ Várnegyedre néző kilátás
✅ Nappali + 4 szoba, gardrób
✅ 2 fürdőszoba + 2 külön mellékhelyiség
✅ Prémium minőségű burkolatok és kivitelezés
✅ Daikin hőszivattyús rendszer (padlófűtés + fan coil hűtés)
✅ 3 rétegű nyílászárók, VELUX tetőablakok
✅ Neff konyhai gépekkel felszerelt konyha

Az épület:
✅ Felújított közműhálózat
✅ Megújult lift és tetőszerkezet
✅ Folyamatos korszerűsítések (homlokzati munkák folyamatban)

Költségek és egyéb:
✅ Közös költség: 29 280 Ft (felújítási alappal)
✅ Átlagos villanyköltség: ~30 000 Ft/hó
✅ Egyedi mérésű vízfogyasztás
✅ Telekom és One szolgáltatás elérhető
✅ Saját tároló tartozik a lakáshoz

Kinek ajánljuk?
Ideális választás családoknak, akik tágas, jól szeparált tereket keresnek, valamint azoknak, akik értékelik a panorámát és a minőségi kivitelezést. Tökéletes lehet olyan pároknak vagy akár otthonról dolgozóknak is, akiknek fontos a több külön nyíló szoba és a nyugodt, mégis központi elhelyezkedés.

Ez az ingatlan ritka kombinációja a prémium minőségnek, a kiváló lokációnak és a különleges térélménynek.

-- English --

**Buda panorama, spacious interiors, and a rare duplex layout in one of the best locations of District XII.**

For sale in one of the most sought-after parts of District XII, on Csörsz Street, just steps from MOM Park, a premium-quality, duplex apartment with a terrace and panoramic views of the Buda Castle District.

The neighborhood offers the perfect balance of tranquility and vibrant city life: MOM Park shopping center, cinema, restaurants, and the green spaces of Gesztenyés Park are all within a few minutes’ walk. Nearby you’ll also find sports facilities (swimming pool, gyms) and the University of Physical Education. Public transport is excellent, with quick tram access to Déli Railway Station and Széll Kálmán Square.

A key feature of the property is its **internal two-level layout**, providing spacious and well-separated living areas.

**Key features:**
✅ Duplex layout (approx. 125 sqm total)
✅ 22 sqm panoramic terrace
✅ View over the Buda Castle District
✅ Living room + 4 bedrooms, walk-in closet
✅ 2 bathrooms + 2 separate toilets
✅ Premium-quality finishes and materials
✅ Daikin heat pump system (underfloor heating + fan coil cooling)
✅ Triple-glazed windows, VELUX roof windows
✅ Fully equipped kitchen with Neff appliances

**Building:**
✅ Fully renewed utility systems
✅ Refurbished elevator and roof structure
✅ Ongoing upgrades (façade insulation works in progress)

**Costs and additional information:**
✅ Common cost: HUF 29,280 (includes renovation fund)
✅ Average electricity cost: ~HUF 30,000/month
✅ Individually metered water consumption
✅ Telekom and One services available
✅ Private storage unit included

**Who is it ideal for?**
An excellent choice for families looking for spacious, well-separated living areas, as well as for those who appreciate panoramic views and high-quality finishes. It is also ideal for couples or remote workers who value multiple separate rooms and a शांत yet central location.

This property is a rare combination of premium quality, prime location, and a truly unique living experience.

B. Zs.
Lukács Péter

Lukács Péter

Hívjon bizalommal

+36-30-694-Mutasd!

További hirdetéseim

Ingatlaniroda
GDN Ingatlanhálózat - Belváros
+36 1 783 2515

Küldjön üzenetet

Visszahívást kérek

Hasonló ingatlanok