Eladó Családi ház Budapest XVII. kerület - Emlék utca

159 m2Alapterület 5 Szoba
169 990 000 Ft Ár
395298Azonosító
További adatok

641 m2 Telek

Kertre néző Kilátás

Új Állapot

Tégla Szerkezet

24 m2 Erkély/terasz

Hőszivattyú Fűtés

Dupla komfort Komfort

Saját beálló Parkolás

Tömegközlekedés

Amerikai konyhás

Van Kertkapcsolat

2025 Építés éve

Délnyugati Tájolás

Hitelkalkuláció – a részletekért kattintson valamelyik bank logójára!

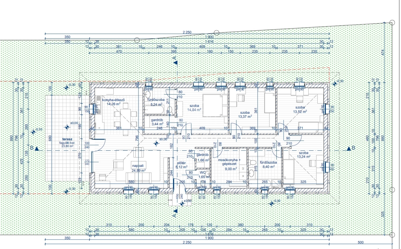
A XVII. kerület csendes, családi házas övezetében, az Emlék utca 58. szám alatt kínálom megvételre ezt a 641 m²-es telekre épülő, nettó 147 m²-es, modern és energiatakarékos új építésű családi házat, amelyhez egy 23,8 m²-es terasz is tartozik.

A kivitelezést megbízható, több sikeres referenciával rendelkező kivitelező cég végzi, az ingatlan pedig kulcsrakészen kerül átadásra.

A ház praktikus elrendezésének köszönhetően négy külön nyíló szoba és egy tágas amerikai konyhás nappali biztosítja a kényelmes mindennapokat, miközben a korszerű műszaki tartalom alacsony fenntartási költségeket garantál.

Az épület Porotherm 30-as tégla falazattal, 14 cm-es grafitos homlokzati szigeteléssel és 30 cm vastag tetőszigeteléssel készül. A fűtést és a melegvizet 12 kW-os hőszivattyú biztosítja, a teljes ingatlanban padlófűtéssel, míg a hűtést fancoil egységek látják el.

A háromrétegű fehér nyílászárók motoros redőnnyel szerelve kerülnek beépítésre.

A belső burkolatok és szaniterek választhatók:
-csempe 8.000 Ft-ig 180 cm-es magasságig, a fölött 12.000 Ft/m²
-fürdők padlóburkolata 8.000 Ft/m²-ig
-minden helyiség parkettaburkolattal, alátéttel és szegéllyel 5.000 Ft/m²-ig
-terasz burkolata 4.000 Ft/m²-ig
-szaniterek összeghatára 350.000 Ft.


Ez az ingatlan ideális választás mindazok számára, akik egy modern, praktikusan kialakított, magas műszaki tartalmú, alacsony üzemeltetési költségű, új építésű családi házra vágynak egy kiválóan megközelíthető, mégis nyugodt környéken.

INGYENES hitel tanácsadás, CSOK Plusz - Otthon Start ügyintézés!
BANKFÜGGETLEN hitelcentrumunk az összes elérhető bank és hitelintézet ajánlatát versenyezteti az Ön kedvéért, ráadásul DÍJMENTESEN.

- Egyedi, bankfiókban nem elérhető kamat- és díjkedvezmények
- Hitelképesség vizsgálat
- Idő, energia és pénz megtakarítás
- Teljes hivatali ügyintézés

Amennyiben hirdetésem felkeltette az érdeklődését vagy egyéb információra van szüksége hívjon bizalommal!
Lukács Péter

Lukács Péter

Hívjon bizalommal

+36-30-694-Mutasd!

További hirdetéseim

Ingatlaniroda
GDN Ingatlanhálózat - Belváros
+36 1 783 2515

Küldjön üzenetet

Visszahívást kérek

Hasonló ingatlanok