Eladó Lakás (téglaépítésű) Budapest IV. kerület - Árpád út

83 m2Alapterület 2 + 1 Szoba
79 500 000 Ft Ár
393503Azonosító
További adatok

Utcai Kilátás

Közepes Állapot

Tégla Szerkezet

Gáz (konvektor) Fűtés

Összkomfort Komfort

Utcán, közterületen Parkolás

Emelet 2

Nincs Lift

Kiváló Tömegközlekedés

Nem Amerikai konyhás

Nincs Kertkapcsolat

1914 Építés éve

Déli Tájolás

Hitelkalkuláció – a részletekért kattintson valamelyik bank logójára!

BEFEKTETŐK, KIVITELEZŐK ÁLMA ÚJPEST SZÍVÉBEN!
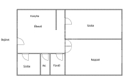
Két lakássá osztható, 83 nm-es nagypolgári lakás a Metrótól pár lépésre! Eladó a IV. kerület központi részén, az Árpád úton egy kivételes átalakítási lehetőségeket rejtő, 83 m²-es, 2. emeleti, utcai nézetű, napfényes nagypolgári lakás. A lakás jelenleg átlagos/ igény szerint felújítandó állapotú, ami az új tulajdonos számára tiszta lapot jelent álmai otthonának vagy egy magas hozamú befektetés megvalósításához.
A jelenlegi elosztás: nagy étkező-konyha + nappali + két hálószoba, fürdőszoba és egy kamra. A fűtésről gázkonvektor, a melegvízről gázbojler gondoskodik.
HATALMAS POTENCIÁL , A LEHETŐSÉGEK TÁRHÁZA: A lakás igazi értéke a variálhatóságában rejlik. Két lakás egyben: Mivel az ingatlannak két külön bejárata van, két gáz és két vízórával is rendelkezik könnyedén kialakítható belőle két önálló, apartman (pl. kiadásra), amely a környék felkapottsága és a metró közelsége miatt azonnal kiadható.
A belső válaszfalak mozgathatók, így a tér teljesen újragondolható. Kényelmesen kialakítható egy tágas amerikai konyhás nappali + 3 vagy akár 4 külön hálószoba. A 3,60 méteres belmagasság nemcsak elegáns térérzetet ad, hanem lehetőséget biztosít galériák építésére is, amivel tovább növelhető a hasznos alapterület. A társasház lift nélküli, de korrekt, közepes állapotú, rendezett lakóközösséggel.
A lokáció verhetetlen: Az M3-as metró (Újpest-központ) mindössze 150-200 méterre található, így a belváros percek alatt elérhető. A közelben piac, kormányablak, bevásárlási lehetőségek, iskolák és gyógyszertárak mind sétatávolságra vannak. Ez az ingatlan tökéletes választás azoknak, akik látják a fantáziát a terek újraformálásában, vagy olyan befektetést keresnek, ahol egy ingatlan áráért két bérbeadható lakást nyerhetnek. Jöjjön el, nézze meg, és tervezze meg új otthonát vagy befektetését! Várom hívását a hét bármely napján!
Lukács Péter

Lukács Péter

Hívjon bizalommal

+36-30-694-Mutasd!

További hirdetéseim

Ingatlaniroda
GDN Ingatlanhálózat - Belváros
+36 1 783 2515

Küldjön üzenetet

Visszahívást kérek

Hasonló ingatlanok