Eladó Családi ház Szeged - Vinkler László út

99 m2Alapterület 4 Szoba
113 990 000 Ft Ár
394292Azonosító
További adatok

265 m2 Telek

Udvari Kilátás

Új Állapot

Tégla Szerkezet

Hőszivattyú Fűtés

Összkomfort Komfort

Saját beálló Parkolás

Tömegközlekedés

Amerikai konyhás

Van Kertkapcsolat

2026 Építés éve

Hitelkalkuláció – a részletekért kattintson valamelyik bank logójára!

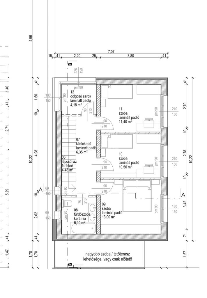
Eladó kulcsrakész családi ház Szegeden, a Liliom lakóparkban BYD mellett!

A modern elosztású ingatlan amerikai konyhás nappalival, 3 szobával, 2 fürdőszobával, dolgozósarokkal és külön háztartási helyiséggel rendelkezik 100 nm2-en.

A ház kulcsrakész állapotban kerül átadásra: választható burkolatokkal, festett falakkal, szaniterekkel, beltéri ajtókkal és komplett elektromos szereléssel. Az épület korszerű háromrétegű nyílászárókkal, levegő–víz hőszivattyús padlófűtéssel, klíma előkészítéssel, valamint modern gépészeti és elektromos rendszerrel készül.

A jól átgondolt elrendezésnek köszönhetően a ház tágas, világos és jól kihasználható tereket biztosít az egész család számára

További információért és megtekintésért keressen bizalommal!
Lukács Péter

Lukács Péter

Hívjon bizalommal

+36-30-694-Mutasd!

További hirdetéseim

Ingatlaniroda
GDN Ingatlanhálózat - Belváros
+36 1 783 2515

Küldjön üzenetet

Visszahívást kérek

Hasonló ingatlanok