Eladó Ikerház Budapest III. kerület - Pálvölgyi út

153 m2Alapterület 7 Szoba
215 000 000 Ft Ár
387926Azonosító
További adatok

500 m2 Telek

Panoráma Kilátás

Felújítandó Állapot

Tégla Szerkezet

6 m2 Erkély/terasz

Gáz (cirkó) Fűtés

Összkomfort Komfort

Saját beálló Parkolás

Kiváló Tömegközlekedés

Nem Amerikai konyhás

Van Kertkapcsolat

1930 Építés éve

Délkeleti Tájolás

Hitelkalkuláció – a részletekért kattintson valamelyik bank logójára!

BEFEKTETÉSRE IS KIVÁLÓ ! PÁLVÖLGYI INGATLAN. RENDKÍVÜLI ÁRCSÖKKENÉS.

Különleges lehetőség Budán: két önálló lakás egy telken a Pálvölgyi-barlang szomszédságában, karnyújtásnyira az erdőtől!

Budán, a II. és III. kerület határán, a festői szépségű Pálvölgyi-barlang szomszédságában kínáljuk megvételre ezt a ritka adottságokkal rendelkező ingatlant, egy csendes, zöldövezeti utcában.
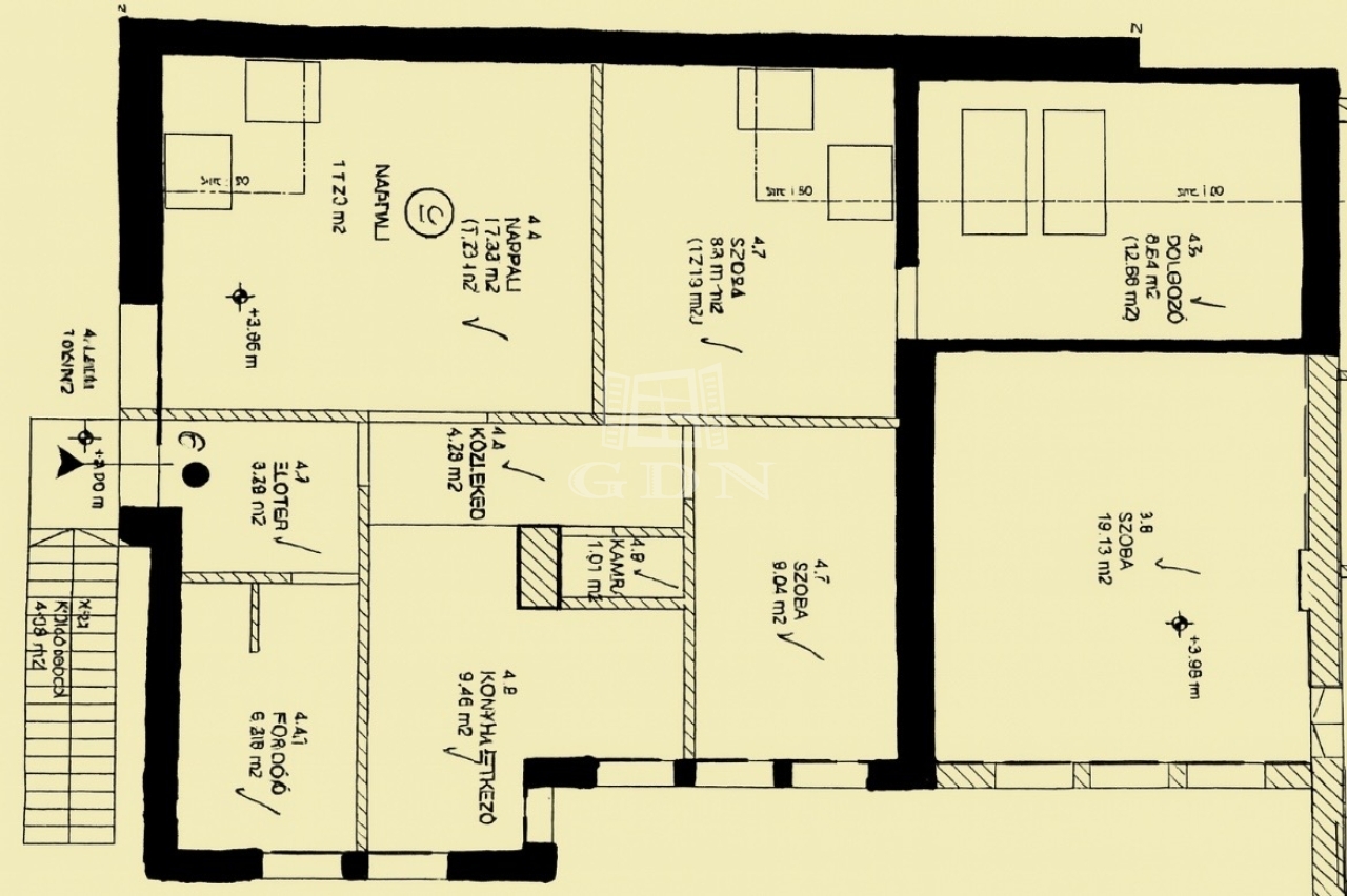
Az 500 m²-es telekrészen egy ikerház egyik fele található, amely jelenleg két különálló, teljes értékű lakást foglal magában – a földszinten lévő lakás 84 m2, a tetőtéri lakás nettó 69 m2, egymás felett elhelyezkedve, saját bejárattal. Az alsó és felső lakás különállóságának köszönhetően ideális többgenerációs családoknak, összeköltözőknek vagy akár befektetőknek is.
A felső szint a 2000-es évek elején került kialakításra, amikor a korábbi tetőteret betongerendás födémmel megerősítették és megemelt tetővel egy önálló lakássá alakították. A felső szint külön, külső lépcsőn keresztül közelíthető meg.

Főbb jellemzők:
Két teljesen önálló lakás (összesen a két lakás nettó 153 m²)
500 m²-es saját telekrész, zöld növényzettel kerített.
Minden közmű adott az ingatlanon belül: víz, gáz, villany, csatorna, internet.
Stabil szerkezet, betongerenda födém.
Nyugodt, barátságos, zöldövezeti környék, kiváló szomszédokkal.
Építési lehetőség: az ingatlan az utcafront felé bővíthető

Fejlesztési lehetőségek:
Az új tulajdonos dönthet úgy is, hogy a két lakást egybenyitja, így egy impozáns, 160+ m²-es családi otthont alakíthat ki, vagy megtartja a jelenlegi kialakítást és akár kiadásra is hasznosíthatja az egyik szintet.

Lokáció:
A ház elhelyezkedése rendkívül előnyös: a természet közelsége, a barlang és a zöldövezet békéje egyesül a városi infrastruktúra kényelmével. A belváros autóval és tömegközlekedéssel is könnyen elérhető, mégis egy nyugodt, eldugott utcában található.

Az ingatlan kizárólag egyben eladó, a lakások külön nem elérhetők.
Ez az ingatlan egy igazi kuriózum a budai oldalon, a II. kerület és III. kerület határán, ahol a nyugalom, a természetközeliség és a fejlesztési lehetőségek egyaránt adottak. Ne hagyja ki – ilyen lehetőség ritkán kerül a piacra!
Ha kérdése van, vagy szeretné megtekinteni az ingatlant, keressen bizalommal!


Investors notice! Price reduction! Unique Opportunity in Buda: Two Independent Apartments on One Plot Near the Pálvölgyi Cave – Just Steps from the Forest!
Located on the border of Budapest’s District II and III, right next to the picturesque Pálvölgyi Cave, we are offering for sale this rare property in a quiet, green residential street.
Set on a 500 m² private plot, this semi-detached house includes two fully separate apartments situated one above the other.
The ground floor apartment is 84 m²,
The attic-level apartment is 69 m² net,
both with separate entrances.
This layout is ideal for multi-generational living, co-housing solutions, or investment purposes.
The upper floor was added in the early 2000s, when the original attic was reinforced with concrete beam flooring and converted into a fully functional apartment with a raised roof. The upper unit is accessible via a private external staircase.

Key Features:
2 fully self-contained apartments (total net area: 153 m²)
500 m² private garden, enclosed by greenery and fencing
All utilities available on-site: water, gas, electricity, sewer, high-speed internet
Solid structure, reinforced with concrete beam ceiling
Peaceful, green neighborhood with friendly long-term neighbors
Expansion potential: the property can be extended toward the street frontage based on current building regulations

Development Options:
The new owner can choose to combine the two levels to create a spacious 160+ m² single-family home, or retain the separate units and use one for rental income, guest accommodation, or family.

Location Highlights:
The home offers the best of both worlds – peaceful, nature-surrounded living next to a national treasure, yet within easy reach of the city center by car or public transport.
Tucked away on a quiet, hidden street, this is a true urban retreat.

Please note: the property is for sale as a whole – the apartments are not available separately.
This is a rare gem on the Buda side, at the crossroads of District II and III – where tranquility, nature, and future potential all come together. Don’t miss out – opportunities like this are few and far between!

Feel free to contact us with any questions or to schedule a viewing.
Lukács Péter

Lukács Péter

Hívjon bizalommal

+36-30-694-Mutasd!

További hirdetéseim

Ingatlaniroda
GDN Ingatlanhálózat - Belváros
+36 1 783 2515

Küldjön üzenetet

Visszahívást kérek

Hasonló ingatlanok