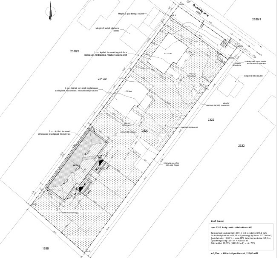
Eladó Ikerház Mogyoród - Borvirág utca

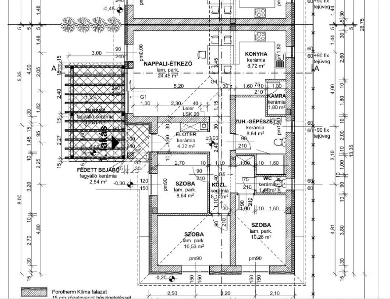
96 m2Alapterület 4 Szoba
99 900 000 Ft Ár
387471Azonosító
További adatok

628 m2 Telek

Panoráma Kilátás

Új Állapot

Tégla Szerkezet

17 m2 Erkély/terasz

Hőszivattyú Fűtés

A+ Energetika

Összkomfort Komfort

Saját beálló Parkolás

Közepes Tömegközlekedés

Amerikai konyhás

Van Kertkapcsolat

2025 Építés éve

Délkeleti Tájolás

Hitelkalkuláció – a részletekért kattintson valamelyik bank logójára!

BOMBA ÁRON MOGYORÓDON ! ! !

CSEND, NYUGALOM, MADÁRCSICSERGÉS...

CSAK 94.900.000 FT ! ! !

3 KÜLÖNNYÍLÓ SZOBA + AMERIKAI KONYHÁS NAPPALI, TERASZ!

BRUTTÓ 105 NM!

A ház 30-as xtherm téglából épült, szigetelése 15cm, Bramac tetőcserép fedéssel.
HŐSZIVATTYÚs fűtési rendszerrel, valamint KLÍMÁval és RIASZTÓval kerül átadásra.

Tervezett átadás: 2026. DECEMBER 31.
NEM A KIVITELEZŐTŐL FÜGG, Ő 6 HÓNAP ALATT MEGÉPÍTI!

HITELEZHETŐ, CSOK KÉPES ÉS RUGALMASAN MEGTEKINTHETŐ!

HÍVJON A RÉSZLETEKÉRT, NE MARADJON LE RÓLA!

U.I.: A képek ugyanazon beruházó által készített hasonló ingatlanban készültek! Az alaprajz a valóságnak 100%-ban megfelelő.
Lukács Péter

Lukács Péter

Hívjon bizalommal

+36-30-694-Mutasd!

További hirdetéseim

Ingatlaniroda
GDN Ingatlanhálózat - Belváros
+36 1 783 2515

Küldjön üzenetet

Visszahívást kérek

Hasonló ingatlanok